FO-Series Fiber Laser
Large Format Gantry-type Laser Cutting Machine width state-of-the-art Fiber Laser Technology

Features
- Optimized for cutting large product for Ship Building, Steel Mill and Construction industries
- Alternative to Plasma and Gas Cutter for high precision & ultra speed
- Modular designed High-stiffness main frame and ultralight cutting bridge
- Available to arrange multiple sheets with multi-origin function
- · Easy accessibility & operation based on operator-focused design and structure
- · Dual touch panels, with 4-channel cameras & monitors for process viewing
- Built-in designed LASER source in air conditioning cabinet
- Multi chamber fume extraction system
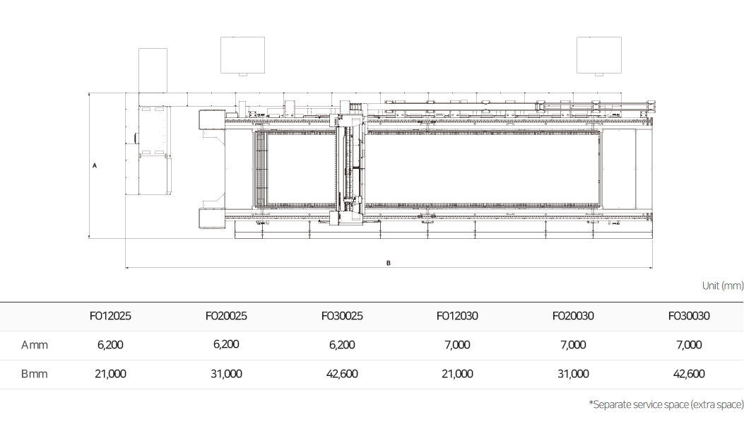
- Length 12M/20M/30M x Span 2.5M/3.0M
Videos
Download brochure
FO12025_FHD_220706.pdf
Download




